联系人:黄先生
手机:13695194505
(佛山销售处24小时服务)
地址:广东省佛山市顺德区乐从镇良村水马街一巷6号铺之二

您当前位置:首页 - 德力机械的挂梁桥式起重机

 
德力机械的挂梁桥式起重机
点击:2566    发布单位:www.fsdeliqz.com    发布时间: 2018-01-08

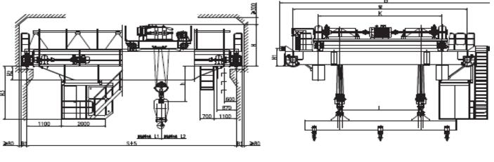
挂梁桥式起重机

1、 本起重机带有可拆卸的电磁盘,特别适用于搬运具有导磁性的黑色金属制品与材料,如钢锭、型钢、生铁块等。主要用于钢铁企业轧线、成品库,船厂钢料堆场、下料车间等。
2、 本起重机起重量包含电磁铁自重,起重机总重不包含电磁铁自重。
3、 结构简单,受力均衡,拆卸方便。
4、 采用单电机带动单卷筒或双卷筒结构形式,保证了起吊物的同步性。
5、 挂梁金属结构采用钢板焊接的箱形梁型式,挂梁上电磁吸盘均可拆卸,维修方便。
6、 超载限限制器采用双传感器双通道分别输入,对单个吊点及二起升机构的合力分别设定控制点,使起重机的使用更方便、更安全。
二、产品简图及技术规格(32t、40t)

关键词: 电动起重机  抓斗起重机  禅城起重机安装  起重机报价  抓斗起重机  佛山起重机厂家  电动起重机  双梁桥式起重机  电动葫芦桥式起重机  电动葫芦桥式起重机  桥式起重机  防爆单梁起重机厂家  进口起重机  随车起重机  门式起重机  动臂式塔式起重机  单梁桥式起重机  双梁起重机  塔式起重机  桥式起重机  起重机厂  进口起重机  动臂式塔式起重机  佛山起重机工厂  流动式起重机  电动起重机  汽车起重机  电动葫芦桥式起重机  防爆单梁起重机厂家  单梁桥式起重机  起重机图片  桥式起重机  南海起重机维修  悬臂起重机  防爆单梁起重机厂家 
友情链接:
首页 | 公司简介 | 产品中心 | 案例展示 | 新闻资讯 | 销售网络 | 企业文化 | 联系我们 | 网站标签 |粤ICP备2024303032号
大涌  梅州  内江  崇左  斗门  黄埔  英德  洪梅  广州  天河  樟木头  大埔  曲江  武江  新丰  龙华  阳山  雅安  佛冈  广宁  遵义  毕节  澄海  仁化  鹤山  廉江  封开  巴中  惠州  黄江  陆丰  坡头  横栏  阳东  金平  清溪  花都  兴宁  蓬江  五华  贺州  龙华  珠海  茂名  南海  泸州  浈江  紫金  平远  港口